Vorwort | Projekte | Impressum
Architekturbüro Walter Arns
       
 
Wohnbebauung und Städtebau [Projektliste]
       
Wohnbebauung Am Stadtweiher
Hochdahl, 1971
   
 
Das städtebauliche Konzept für das Gebiet "Am Stadtweiher" war ein Teil des Gesamtplans von Prof. A. Machtemes.
Darin war vorgesehen, die Mitte der Neuen Stadt durch eine stark konzentrierte Hochhausbebauung zu unterstreichen. An diesem Ort höchster Verdichtung sollte gleichzeitig auch ein großzügiger, parkähnlicher Raum entstehen, dem eine Wasserfläche Weite und ein unverwechselbares Gesicht gibt.
Von den ursprünglich projektierten sieben Wohntürmen wurden zunächst die drei am Wasser stehenden gebaut - zusammen mit den dazu gehörenden Außenbereichen. Die Baulichkeiten der Uferanlage, die Tiefgaragen und die parkartigen Freiflächen zwischen den Gebäuden sind zu einem durchgehenden Sockelbauwerk zusammengefaßt, auf welchem die Türme stehen.
Bauträger war die GEWAG für den RWI-Fonds als Bauherrn. Die Neue Heimat erstellte später noch zwei weitere Wohnhochhäuser, für die wir ebenfalls die Ausführungsplanung übernahmen.


Das Gesamtkonzept im Modell
Nur fünf der sieben Hochhäuser wurden gebaut. (Foto: Foto Gräf)


Die drei Hochhäuser am Stadtweiher
(Foto: Foto Gräf)

 
   

 

 


Die Anlage "Am Stadtweiher" kurz nach der Fertigstellung
(Foto: Foto Gräf)


Lageplan der Dreiergruppe


Ansicht Ost


Ansicht Süd

 


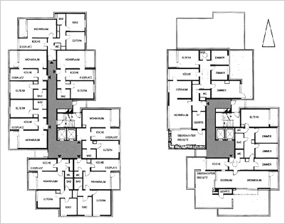
Grundrisse der Hochhäuser
Normal- und Dachgeschoß