Vorwort | Projekte | Impressum
Architekturbüro Walter Arns
       
 

Einfamilienhäuser [Projektliste]
       
Einfamilienhaus Arns
Remscheid, 1969
   
 
Als Architekt stellt man bei der Planung des eigenen Wohnhauses besonders hohe Ansprüche an sich selbst - vielleicht ging ich deswegen dieses Vorhaben erst an, als ich schon beinahe 20 Jahre im Beruf war.
Das scheinbar unspektakuläre Grundstück an der Marienstraße wurde von der "Concordia"-Gesellschaft verkauft und fand keine Interessenten, obwohl es in direkter Zentrumsnähe liegt. Man konnte hier ein Haus bauen, das von der Straße aus unscheinbar wirkt, sich aber hangabwärts nach Süden ganz auf den dort liegenden Park öffnet.

Die Planungsarbeit zog sich über viele Monate hin; in zahlreichen Entwurfsstudien suchten wir nach der besten Lösung. Sogar auf der Baustelle veränderte ich immer noch das eine oder andere Detail. Im Sommer 1972 konnten meine Familie und ich einziehen.

Blick auf den Eingang
(Foto: Th. Arns)
 


Wohnraum mit Ausblick in den Garten (Foto: Th. Arns)


Blick von der Bibliothek auf den höher liegenden Essbereich
(Foto: Th. Arns)



Die Bibliothek mit Ausblick in den Garten (Foto: Th. Arns)


Blick von Süden auf die Gartenseite (Foto: H. Grempel)


Ansicht vom Garten


Schnittansicht der Eingangsseite


Grundriss Obergeschoss


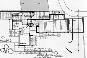
Grundriss Erdgeschoss


Blick auf Wohnraum - Galerie - Wendeltreppe (Foto: Th. Arns)


Die Gartenseite (Foto: H. Grempel)