Vorwort | Projekte | Impressum
Architekturbüro Walter Arns
       
 

Schulen, Kindergärten, Jugendzentren [Projektliste]
       
Gewerbliche Berufsschulen
Remscheid, 1963
   
 

1961 schrieb die Stadt Remscheid einen Wettbewerb für die gewerblichen Berufsschulen am Neuenkamp aus.
Die Schwierigkeit lag unter anderem darin, ein ambitioniertes Raumprogramm auf dem nicht allzu großen Grundstück unterzubringen und dabei noch mit dem hangigen Gelände zurecht zu kommen.
Wir lösten das Problem, indem wir einen schmalen, zweigeschossigen Flügel mit Klassenräumen quer gegen den Hang stellten. Er bildet auf diese Weise eine Art Sockel für das eigentliche Hauptgebäude; auf seiner Rückseite konnte das Gelände anterrassiert werden, so daß ein großer, ebener Platz entstand. Von dort her betritt man die Eingangshalle des Hauptgebäudes. Sie ist rundherum verglast, so daß der Baukörper über dem Platz zu schweben scheint.
Ein Shedbau, in dem die Lehrwerkstätten untergebracht sind, begrenzt das Ensemble zur anderen Seite hin; im Norden schließt ein flacher Anbau mit Hausmeisterwohnung und Nebenräumen den Platzraum.


Lageplan


Das Konzepts im Modell

 
Zugang zum Schulkomplex von der Neuenkamper Straße aus
 
 


Der Shedbau mit den Lehrwerkstätten


Geländeschnitt mit der Ostansicht des Hauptgebäudes


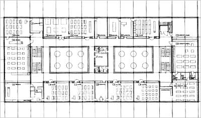
Grundriß des 3. Obergeschosses. In der Mitte liegen zwei Innenhöfe, über die die Hörsäle im 1. Obergeschoß belichtet werden.


Südansicht
Das Hauptgebäude steht über dem zweigeschossigen Klassentrakt.


Westansicht
Im Vordergrund liegt der Kubus der großen Aula.


Das Hauptgebäude


Die Eingangshalle (Foto: Th. Arns)


Ein Blick in die Lehrwerkstätten


Die große Aula (Foto: Th. Arns)