Vorwort | Projekte | Impressum
Architekturbüro Walter Arns
       
 
Wohnbebauung und Städtebau [Projektliste]
       
Wohnbebauung ECA
Freiburg, 1951
W. Arns, H. Lüttinger
   
 
Zum Wettbewerb für die Freiburger ECA-Siedlung traten Hubert Lüttinger und ich gemeinsam an. Hubert Lüttinger studierte damals Architektur in Karlsruhe, ich arbeitete dort als Assistent am Lehrstuhl von Prof. Otto Haupt. Der erste Schritt ins praktische Berufsleben und gleichzeitig der Beginn einer Zusammenarbeit, die bis in die 90er Jahre andauern sollte.
Das Projekt ECA (Economic Cooperation Administration) war ein Sonderprogramm im Rahmen des Marshall-Plans, mit dem der Wohnungsbau der ersten Nachkriegszeit gefördert werden sollte. Das Ziel dabei war, neue Ideen für kostengünstigen Wohnungsbau entwickeln und in die Tat umsetzen zu lassen. Städte in ganz Deutschland konnten sich als Standorte für die ECA-Siedlungen bewerben - unter der Bedingung, die Erschließungskosten selbst zu tragen.
In Wettbewerben für die jeweiligen Standorte waren Arbeitsgruppen aus Architekten, Wohnungswirtschaftlern und Baufirmen aufgefordert, vorbildliche städtebaulich-architektonische Konzepte zu erarbeiten, unter Ausschöpfung aller wirtschaftlichen Möglichkeiten, um die Baukosten niedrig zu halten. Bundesweit beteiligten sich über 700 Arbeitsgruppen.
Bewertet wurde nicht nur die städtebauliche Idee, die Gestaltung der Gebäude und die Grundrißqualitäten der Wohnungen, sondern auch die Wirtschaftlichkeit des Konzepts: die Kostenkalkulation des ausführenden Bauunternehmens war Bestandteil der Wettbewerbsarbeit.
Wir arbeiteten mit der Firma Ernst Wolfsberger aus Emendingen zusammen. Heinz Diehl, ein erfahrener Bauleiter, war für uns ein unverzichtbarer Begleiter bei den ersten beruflichen Gehversuchen.


Wettbewerbsbeitrag im Modell

 




Ansicht Süd


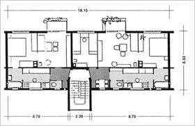
Normalgeschoß


Die Wohnzeilen während der Bauphase



Südostfassade einer Wohnzeile (Foto: Th. Arns)


Eine Hauszeile kurz nach der Fertigstellung
(Foto: Th. Arns)


Eine Hauszeile im Jahr 2001 (Foto: Th. Arns)


Insgesamt entstanden auf dem 4,1 ha großen Areal 134 Wohneinheiten verschiedener Größe und Grundrißorganisation.
Die Kosten pro Wohneinheit betrugen ca. 15.000-25.000 DM.


Eingangsseite (Foto: Th. Arns)


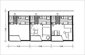
1-Zi- Appartements

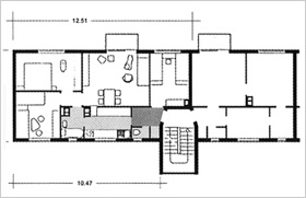
Normalgeschoß

Normalgeschoß