Vorwort | Projekte | Impressum
Architekturbüro Walter Arns
       
 

Mehrfamilienhäuser [Projektliste]
       
Mehrfamilienhaus Franz-Heinrich-Straße
Remscheid-Lennep, 1968
   
 
Ende der 60er Jahre ergab sich die Möglichkeit, das Nachbargrundstück des Wohnhauses Rospattstraße 18 zu erwerben und mit einem Mehrfamilienhaus zu bebauen, das direkt an das ältere Gebäude anschließt. Es ist ein viergeschossiger Dreispänner mit 2- und 3- Zimmer- Wohnungen. Die hellen Fensterrahmen und Betonattiken setzen sich von der dunkel verschieferten Fassade ab. Die großzügigen Balkone mit den abgerundeten Pflanzkästen verleihen der Fassade starke Plastizität.


Detailansicht der Fassade
(Foto: H. Grempel)

 


Blick auf die Eingangsseite (Foto: H. Grempel)


Ansicht von Westen


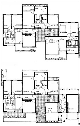
Grundrisse: Wohngeschoss (oben),
Erdgeschoß (unten)