Vorwort | Projekte | Impressum
Architekturbüro Walter Arns
       
 

Wohn- und Geschäftshäuser [Projektliste]
       
Verwaltungsgebäude der GEWAG
Remscheid, 1960
   
 
Der Gemeinnützigen Wohnungs-Aktiengesellschaft GEWAG verdankten wir viele Aufträge in Remscheid und Umgebung.
Immer wieder trat sie als Bauherr größerer Wohnanlagen an uns heran und verwirklichte unsere Projekte.
Ihr langjähriger Vorstand, Günther Thiel, beauftragte uns auch mit der Planung des Remscheider Firmensitzes der Gesellschaft.
Wir entschieden uns, die auf dem Grundstück zulässigen Geschossflächen nicht in Form der ursprünglich vorgesehenen gleichmäßigen Randbebauung zu realisieren, sondern am Drehpunkt zwischen Alle-, Hoch- und Hindenburgstraße einen Akzent zu setzen.
So entstand hhier ein siebengeschossiges Gebäude, mit den Verwaltungsräumen der GEWAG in den ersten beiden Etagen und 1-Zimmer-Appartements in den darüberliegenden Stockwerken. Da das Gebäude fast auf der Hügelkuppe steht, hat man von dort aus einen herrlichen Blick über das Bergische Land.


Blick auf den Eingang


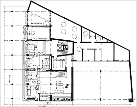
Grundriß des Erdgeschosses mit dem Eingangsbereich zu den Büros der GEWAG


Die geometrische Strenge und Klarheit der Fassade unterstützt die städtebaulich prominente Rolle des Gebäudes. (Foto: Th. Arns)


(Foto: Th. Arns)