Vorwort | Projekte | Impressum
Architekturbüro Walter Arns
   
 

Wohn- und Geschäftshäuser [Projektliste]
   
       
Wohn- und Geschäftshaus
Gottlieb Schmidt
Remscheid, 1955
   
 
Dieses Haus war unser erstes Projekt in Remscheid. Seit zwei Generationen betrieb die Familie Schmidt einen Buch- und Schreibwarenhandel, der sich nach dem Krieg in einem provisorischen eingeschossigen Bau auf der oberen Alleestraße befand. Als die wirtschaftliche Lage stabiler wurde, bat mich Herr Schmidt um den Entwurf für ein Wohn- und Geschäftshaus an Stelle des zerstörten Altbaus an der Alleestraße.
Die Nutzungsaufteilung des Neubaus entsprach dem Gesamtkonzept, das für den Wiederaufbau der Remscheider Innenstadt erarbeitet worden war: Geschäftsnutzung im Erdgeschoßbereich (hier in den ersten zwei Geschossen), Wohnnutzung in den darüberliegenden Stockwerken. Die architektonische Umsetzung jedoch war für die damalige Zeit richtungsweisend: das Haus Schmidt war das erste in der modernen Architektursprache errichtete Gebäude der Innenstadt - mit Flachdach und zurückgesetztem Dachgeschoß. Die zur Straße hin liegenden Räume des Dachgeschosses waren jahrelang Sitz unseres Büros; in der zum Hof orientierten 2-Zimmer-Wohnung wohnten meine Frau und ich bis 1960.


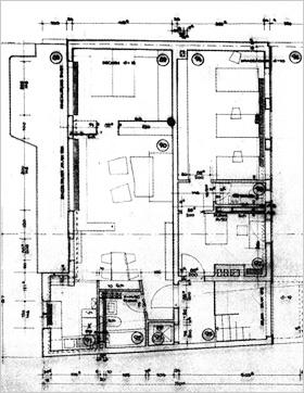
Grundriß Dachgeschoß


Der Verkaufsraum kurz nach der Fertigstellung mit der von uns geplanten Innenraumausstattung.


Der Verkaufsraum


Straßenfassade kurz nach der Fertigstellung und im Jahre 2001.
Im Vergleich sieht man, welche negative Wirkung chaotisch angebrachte Werbetafeln und das überdimensionierte Vordach auf das ursprünglich elegante Erscheinungsbild der Fassade haben. Auch die Umbaumaßnahmen im Erdgeschoß und im 1. Obergeschoß lassen die nötige Sensibilität vermissen.

(Foto u. re.: Th. Arns, alle anderen Fotos entstammen dem Archiv Büro Arns)