Vorwort | Projekte | Impressum
Architekturbüro Walter Arns
       
 
Wohnbebauung und Städtebau [Projektliste]
       
Hangbebauung
Haan-Nachbarsberg, 1975
   
 
Das städtebauliche Konzept für die Bebauung des Gebiets Haan-Nachbarsberg wurde von Prof. Zimmermann aus Köln entwickelt. Die Wertbau beauftragte uns mit der Realisierung der Reiheneigenheime, die im Bebauungsplan an dem nach Westen abschüssigen Hang vorgesehen waren.
Für die teilweise sehr kleinen Parzellen entwickelten wir verschiedene, meist zweigeschossige Haustypen, die sich in unterschiedlicher Form gruppieren ließen - teils am Hang entlang, teils quer zum Gefälle. Am Fuß des Nachbarsbergs war die Steigung so stark, daß wir für diese Stelle einen Terrassentyp verwendeten, bei dem die Häuser jeweils um ein Geschoß versetzt nach oben gestaffelt sind und teilweise übereinandergreifen.
Insgesamt entstand gerade durch die Herausforderung der Topgraphie eine sehr abwechslungsreiche Wohnanlage mit vielen individuellen Situationen und hoher Wohnqualität.


Hochgestaffelte Terrassenhäuser am Fuß des Hügels (Foto: Th. Arns)

Typ A

 

 


Ansichten: Eingangsseite und Gartenseite

 


Gartenseite einer Reihenhausgruppe (Foto: Th. Arns)


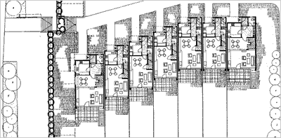
Gundriß einiger Reihenhausgruppen


Ansicht Stirnseite


Geschoßgrundrisse

     
Typ B


Ansichten: Garten- und Eingangsseite, Foto: Blick auf die Eingangsseite (Foto: Th. Arns)


Die Wohnwege in der Anlage
(Fotos: Th. Arns)
     
Typ C Reihenhausgruppe quer zum Hang gestaffelt  

Ansichten: Südwest und Nordwest
 


Grundrisse eines schmalen und eines breiten Hauses


Erdgeschoßgrundriß

Typ E:


Terrassenhäuser am Fuß des Hügels
(Foto: Th. Arns)

Terrassenhäuser am Fuß des Hügels
(Foto: Th. Arns)

Typ D    

Ansichten: Garten- und Straßenansicht
 
Erdgeschoßgrundriß


Blick in den Garten (Foto: Th. Arns)