Vorwort | Projekte | Impressum
Architekturbüro Walter Arns
       
 
Wohnbebauung und Städtebau [Projektliste]
       
Wohnbebauung
Meckenheim-Merl, 1975
   
 
1970 wurde unser Wettbewerbsbeitrag für die Wohnbebauung in Meckenheim-Merl mit dem 1. Preis ausgezeichnet.
Das Konzept sah eine Mischung aus Mehrfamilien- und Reihenhäuser vor, ergänzt durch ein Ladenzentrum.
Die Realisierung geschah in zwei Bauabschnitten im Auftrag zweier verschiedener Bauträgergesell-schaften. Die Versicherungsgesellschaft Deutscher Herold Bonn übernahm die Mehrfamilienhäuser, die Reihenhäuser baute die Adt-Uni-Bau Frankfurt.




Modellfotos des Gesamtkonzepts


Gesamtansicht
 


Fassaden der Mehrfamilienhäuser (Foto: H. Grempel)


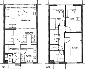
Die Reihenhäuser folgen einem einfachen Konzept. Es sind zweigeschossige, kubische Element, mit hell verputzten Fassaden und dunkel abgesetzten Schieferattiken.


Gartenseite (Foto: H. Grempel)


Straßenseite (Foto: H. Grempel)


Darstellung der Mehrfamilienhäuser im Modell (Modellfotos: Schafgans, Bonn)


Straßenansicht


Gartenansicht


Grundrißbeispiel