Vorwort | Projekte | Impressum
Architekturbüro Walter Arns
   
 
Wohnbebauung und Städtebau [Projektliste]
   
Wohnbebauungen am Neuenkamp
Remscheid, 1968-1991
   
 
Ein neues Kapitel unserer Bautätigkeit am Neuenkamp begann, als wir 1962 einen Wettbewerb für eine Wohnanlage gewannen, die die Gemeinnützige Wohnungsgenossenschaft Remscheid (GWG) dort einstellen wollte.
Unser Konzept sah vor, an der höchsten Stelle des Grundstücks ein 12-geschossiges Hochhaus zu errichten. Daran schloß sich eine Bebauung aus 4- bis 5-geschossigen Wohnzeilen an, die sich, dem Gelände folgend, mit großzügigen begrünten Zwischenräumen über den abschüssigen Hang gruppierten.
In den achtziger Jahren konnte ich einige der angrenzenden Grundstücke erwerben und schrittweise auf eigene Rechnung mit Mehrfamilienhäusern bebauen, wobei ich die beim ersten Projekt begonnene Struktur weiterführte: Zeilenbauten, die über das hangige Gelände gestaffelt sind, umgeben von begrünten Freiräumen. Auch die Eigentümer benachbarter Grundstücke, die Thyssen Wohnungsbaugesellschaft Oberhausen und die GWG Remscheid, beauftragten uns mit Planungen ähnlicher Art.
So ist über mehr als zwei Jahrzehnte an diesem Ort ein Ensemble von Wohnbauten entstanden, das eine gestalterische Kontinuität besitzt und hohe Wohnqualität bietet.

Lageplan
 
       
  Wohnanlage der Gemeinnützigen Wohnungsgenossenschaft (GWG) Remscheid, 1968    
 
Blick auf die Wohnanlage der GWG. Im Hintergrund das Hochhaus (Aufnahme kurz nach der Fertigstellung)
(Foto: H. Grempel)

Blick auf das Hochhaus, von der Wörthstraße aus
(Foto: Th. Arns)
 

 


Die Wohnanlage von der Sedanstraße aus gesehen. Unter der Freifläche im Vordergrund befindet sich eine Tiefgarage. Aufnahme kurz nach der Fertigstellung. (Foto: H. Grempel)


Blick auf das Hochhaus, von der Wörthstraße aus
(Foto: Th. Arns)

 
       
  Wohnanlage Sedan- / Wörth-/ Föhrenstraße, 1981 - 83    


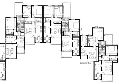
Block B, Grundrißausschnitt
Der Grundriß besteht aus einer gestaffelten Reihung von Zweispännern.


Block B, Nordansicht


Wohnanlage Sedan-/Wörthstraße, 1981
(Foto: Th. Arns)

 
       
  Wohnanlage Wörthstraße (für die GWG Remscheid), 1990    

 


Geschoßgrundriß: Der Baukörper besteht aus aneinandergereihten Zweispänern mit 2- oder 3-Zi-Wohnungen.


Blick von der Wörthstraße (für die GWG Remscheid), 1990 (Foto: Th. Arns)

 
 
Grundriß des Erdgeschosses

Wohnanlage Wörthstraße (für die GWG Remscheid), 1990 (Foto: Th. Arns)
 
       
  Wohnanlage Sedanstraße, 1991    
 
Grundriß


Ansicht von Südost


Ansicht von Südwest

 
 
Blick in den Innenbereich von Süden (Foto: Th. Arns)

Aufgang in den Innenbereich von der Sedanstraße (Foto: Th. Arns)