Vorwort | Projekte | Impressum
Architekturbüro Walter Arns
       
 

Verwaltungsbauten, Banken, Dienstleistungseinrichtungen [Projektliste]
       
Hauptstelle der Stadtsparkasse
Remscheid, 1964
   
     
 
Im Jahr 1962 veranstaltete die Stadtsparkasse Remscheid einen Wettbewerb für ihre neue Hauptstelle, bei dem unser Beitrag mit dem ersten Preis ausgezeichnet wurde.
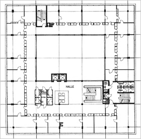
Das Grundstück für den Neubau liegt an einer prominenten Stelle. Es grenzt auf der einen Seite an die Alleestraße, die Haupteinkaufsstraße der Innenstadt, auf der anderen Seite an den Rathausplatz. Wir faßten die Verwaltungsflächen der Bank in einen vierstöckigen Kubus zusammen, der sich über eine zweigeschossige Basis erhebt. Der Kubus nimmt den Bezug zur Rathausfassade auf, indem er rechtwinklig dazu eine Platzwand für den Theodor-Heuss-Platz bildet.
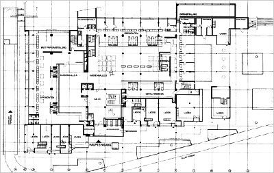
Von der Alleestraße her gesehen erscheinen die Bürogeschosse aus der Achse herausgedreht; die Richtung der Straße wird von den beiden unteren Geschossen aufgenommen, in denen sich der Kundenbereich der Bank und eine Ladenzeile befinden.


Modell


Sparkassenlogo auf einem Zuckerwürfel

 
Blick von der Alleestraße, Aufnahme von 1976
 
Innenraumaufnahme (Foto: A. Schrick)

Grundriß Dachgeschoß
 


Innenraumaufnahme (Foto: A. Schrick)


Grundriß Bürogeschoß

 
Grundriß Erdgeschoß mit Schalterhalle und Ladenzeile

Innenraumaufnahme (Foto: A. Schrick)