Vorwort | Projekte | Impressum
Architekturbüro Walter Arns
       
 

Mehrfamilienhäuser [Projektliste]
       
Mehrfamilienhaus Dr. Stöcker
Solingen, 1970
   
 

Nicht nur Bauträgergesellschaften gaben Mehrfamilienhäuser bei uns in Auftrag, sondern auch private Bauherren.
Dr. Stöcker, ein Zahnarzt aus Solingen, beauftragte uns mit der Planung und dem Bau eines Wohnhauses mit frei finanzierten Mietwohnungen für den gehobenen Bedarf.
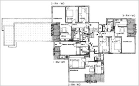
Das Gebäude ist ein Vierspänner mit gegeneinander versetzten Wohnebenen; eine Wohnung in jeder Etage wird vom Zwischenpodest aus erschlossen. Durch die Höhenversprünge bekommt der Baukörper eine interessante Plastizität. In der repräsentativen Penthouse-Wohnung im obersten Geschoß sind die unterschiedlichen Niveaus genutzt, um einen hohen, großzügigien Wohnbereich zu schaffen.


Grundriß Normalgeschoß mit 3 Zimmer-Wohnungen
 

Blick auf den Baukörper (Foto: H. Grempel)

Blick auf den Baukörper
(Foto: H. Grempel)



Blick auf den Baukörper
(Foto: H. Grempel)